Share:

The Zeus14: Hand Fed-Front Loading

Product SKU: The Zeus14: Hand Fed-Front Loading

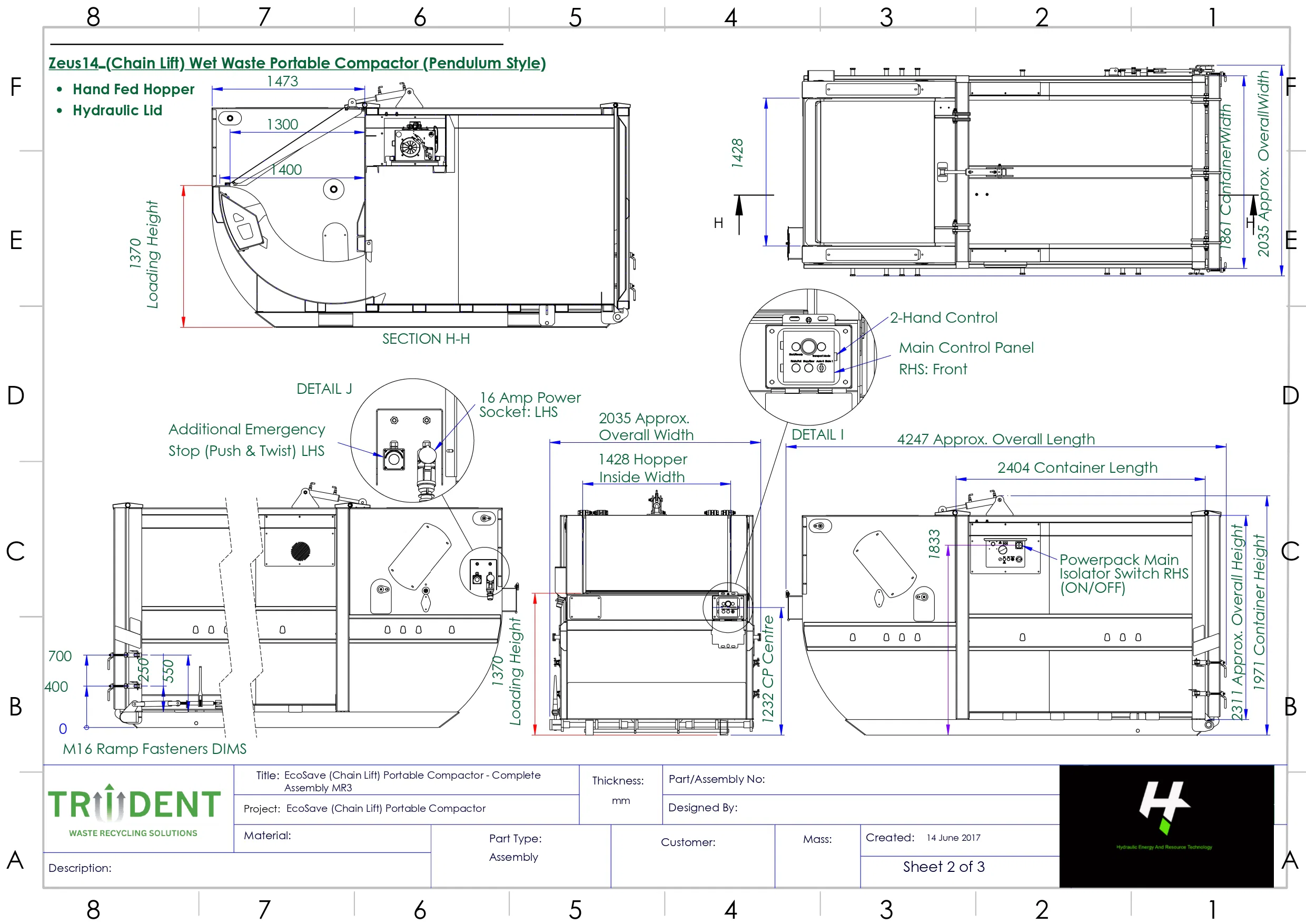
The Zeus14 Wet Waste Portable Compactor with Hand-Fed Front Loading is a compact and hygienic solution designed for sites with limited space. Ideal for handling wet waste, this model features a front-loading hopper and comes complete with a fitted multi-purpose bin lift for safe and efficient waste handling.

Specification Details Value
Charge Box Volume 8 m³
Motor Size 5.0 kW
Cycle Time 45 sec
Power Supply 415V 3 Phase
Ram Stroke 585 mm
Compaction Force 25 Tonne
Compaction Ratio 5:1
Machine Weight 3500 kg
Running Pressure 1600 PSI
Boost Pressure 2200 PSI
Head Face Area 0.75 m²

 

 

The Zeus14 Wet Waste Portable Compactor with Hand-Fed Front Loading is specifically designed to handle wet and food waste efficiently in environments where hygiene, cleanliness, and space-saving are key priorities. Combining compaction and storage within a single sealed unit, it provides a reliable solution for managing waste while keeping surrounding areas clean and controlled.

The hand-fed front-loading hopper allows for easy and practical waste input, making it well-suited for daily use in busy environments. Its enclosed design helps to contain liquids, reduce odours, and prevent leaks, which is particularly important when dealing with wet waste streams.

This model comes equipped with a fitted multi-purpose bin lift, enabling operators to safely and efficiently empty a variety of bins into the compactor. This reduces manual handling, improves staff safety, and helps streamline waste disposal processes.

Download additional specifications sheets below:

 

 

Experienced Team

Work with experts who know the ins and outs of waste management. 

Proven Reliability

High-spec, robust systems that minimise downtime.

Smart Control

PLC-driven systems managing complex, multi-function machinery.

Built for Waste

Designed for harsh, high-demand waste and recycling environments.

Let’s Discuss Your Requirements

Whether you’re planning a new installation, upgrading existing equipment, or exploring hydraulic solutions for your operation, our team is ready to support your project with practical engineering expertise.